Redevelopment of a Showroom

Project Info

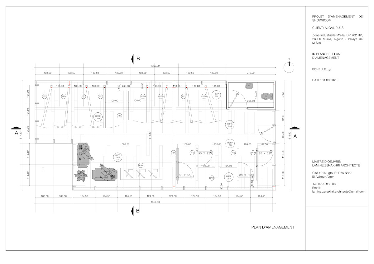
An Algiers showroom was redesigned to transform a dark storage space into a bright, modern display.

Client

Algal Plus

Surface Area

360 m2

Location

Rouiba, Algiers

Project Description

Set within a mezzanine formerly used as storage, this east Algiers showroom project involved transforming a closed-off rectangular space into a tactile, light-filled experience center for aluminum joinery. With a modest ceiling height (2.55–2.88 m) and four partitioned walls, the space lacked ventilation, natural light, and clarity.
 
Our mission was to not only showcase high-performance aluminum systems (doors, windows, French doors, curtain walls), but also to create a showroom that embodied the brand’s technical precision and aesthetic elegance — while prioritizing material sustainability, spatial coherence, and human comfort.

The Brief

Algal Plus needed a space to:

Proposal

This transformation aligns with Synecca’s commitment to ethical spatial design — where technical materials like aluminum and steel are softened through tactile finishes, natural tones, and emotional zoning.

The project was structured into three immersive zones, unified through a central circulation axis:

Fixed Panel Zone — Grounded Technicality

Display of full-height aluminum door panels along a clean vertical wall, designed for high legibility and rhythm. A transparent glass partition system with curtain wall framing redefined the outer envelope — enhancing natural light, openness, and product visibility from the corridor.

Pivoting Panel Zone — Interactive Exploration

French doors and windows were presented on rotating frames, optimizing both space and engagement. Users could interact with the products physically, echoing the hands-on nature of real-life use. Textured metal accents and soft perimeter lighting added focus without visual noise.

Customer Reception Area — Industrial Warmth

To create an inviting client zone within an otherwise industrial palette, we introduced:

Ambiance and Style

The Envelope

The space will be enveloped by a light beige glass wall, mounted on a light gray anodized aluminum structure. The verticality of the aluminum posts will create a visual rhythm, balancing the depth of the space.

Floor and Ceiling

To maintain the industrial style, the floor will be covered with white epoxy resin, over which interwoven LVT planks with wood finishes. The idea is to simply reference the wood textures without overdoing it, in order to maximize the natural light filtering through the glass enclosure.

To visually balance the depth of the space, I propose a false ceiling made of aluminum slats with two different wood finishes. In the customer area, we will have 60x60cm modules made of aluminum slats with a wood finish. These modules will alternate at different heights to mark and harmonize the area dedicated to welcoming and receiving customers.

Accessories

Slim aluminum structure displays will be suspended over the two exhibition areas, marking each zone. In the third area, a floor-standing display will showcase various curtain wall systems with different glazing panels.